Salta al contenuto principale Skip to footer content
PARCHEGGIO SCAMBIATORE RENDERING.jpg

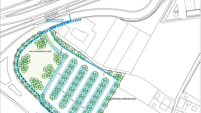
Parcheggio scambiatore tra viale Nenni e Torregalli

Sorgerà a ridosso di zone densamente abitate come Ponte a Greve, Soffiano, San Giusto, Ronco e San Quirico, a due passi dalla fermata tranviaria di viale Nenni e a brevissima distanza dall’ospedale di Torregalli e dalla ex-caserma Lupi di Toscana.
Leggi di piùa proposito di Parcheggio scambiatore tra viale Nenni e Torregalli
La postazione allestita nel sottopasso delle Cure

L’arte di strada approda in periferia

Mercoledì 19 dicembre, a partire dalle 17, una serie di flash mob battezzerà le nuove postazioni allestite fuori dall’area Unesco.
Leggi di piùa proposito di L’arte di strada approda in periferia
Sala d'attesa dello sportello URP di Villa Vogel

‘Sportelli al cittadino’ nei cinque quartieri fiorentini

Dal 14 gennaio integreranno e svilupperanno le funzioni degli Uffici Relazioni con il Pubblico (URP). Sedi e orari. Dal 9 gennaio chiude l'Urp del Parterre, dove invece resta regolarmente in funzione il Punto Anagrafico Decentrato (PAD).
Leggi di piùa proposito di ‘Sportelli al cittadino’ nei cinque quartieri fiorentini
Locandina del Capodanno a Firenze 2019

Capodanno a Firenze

Concertone al piazzale Michelangelo con Francesco Renga, Baby K e Lorenzo Baglioni. Molti altri gli eventi in tutta la città. I provvedimenti di circolazione e i divieti di botti e vetri.
Leggi di piùa proposito di Capodanno a Firenze
Progetto mercato antiquario per Piazza Annigoni

A gennaio via ai lavori in piazza Annigoni per il mercato antiquario

Il progetto prevede la realizzazione di 27 box disposti su due file, con lo spazio centrale parzialmente coperto da una struttura leggera in acciaio e policarbonato.
Leggi di piùa proposito di A gennaio via ai lavori in piazza Annigoni per il mercato antiquario
Alia logo.png

In arrivo il ‘Cartorario’

Un opuscolo informativo sulla raccolta della carta (orari e modalità) nel centro storico. Verrà distribuito prima alle utenze domestiche e successivamente a imprese, uffici e negozi.
Leggi di piùa proposito di In arrivo il ‘Cartorario’
rendering Isolotto 4.jpg

Presentato il progetto esecutivo per piazza Isolotto

Gli elementi centrali sono la valorizzazione del mercato e la creazione di nuove situazioni di socializzazione che favoriscano la fruibilità di questo spazio pubblico da parte di tutti.
Leggi di piùa proposito di Presentato il progetto esecutivo per piazza Isolotto
fermata guidoni 2.jpeg

Fermata ferroviaria in viale Guidoni

Una connessione strategica tra il trasporto regionale e la nuova linea T2 della tramvia, con accesso a tutti i fondamentali servizi dell’area-nordovest, dall’aeroporto all’ospedale di Careggi, dal polo universitario al Palazzo di Giustizia.
Leggi di piùa proposito di Fermata ferroviaria in viale Guidoni

Quanto sono chiare le informazioni su questa pagina?

Grazie, il tuo parere ci aiuterà a migliorare il servizio!

Quali sono stati gli aspetti che hai preferito?1/2

Dove hai incontrato le maggiori difficoltà?1/2

Vuoi aggiungere altri dettagli?2/2

Inserire massimo 200 caratteri